Property Details
Nestled in a quiet position in a convenient security building a short stroll to the village buzz of Double Bay, this two bedroom apartment is a spacious haven. Complete with sun-dappled garden terrace and undercover parking, set in the well-kept Lonsdale building it offers serene living over a good sized layout.
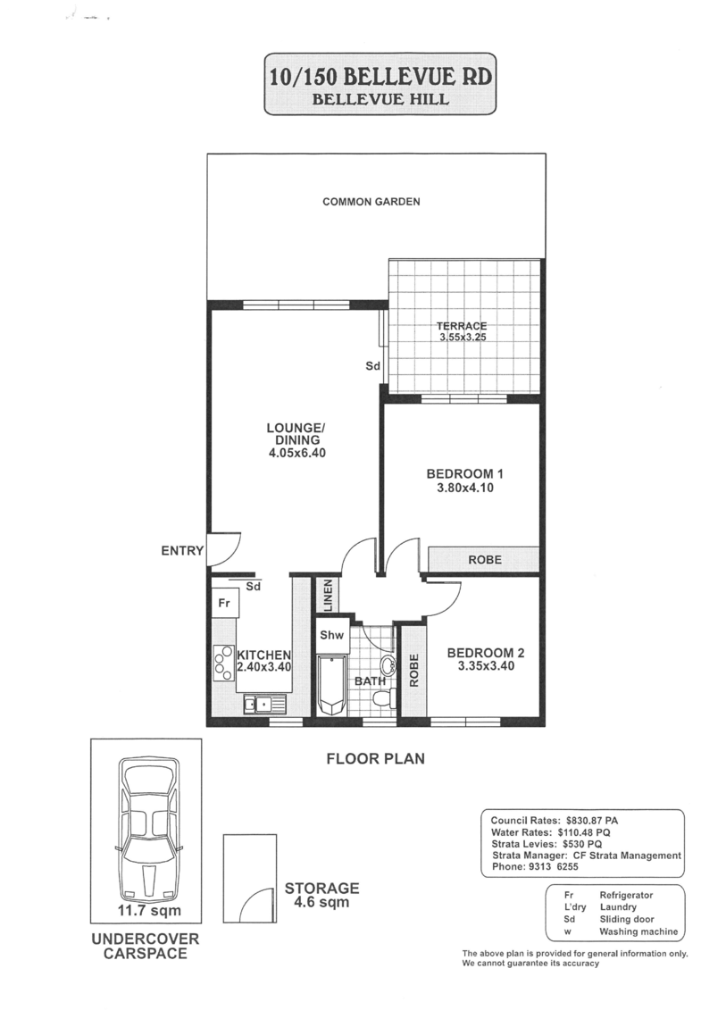
A generous living room with adjoining dining opens to the sheltered terrace, an outstanding area for relaxed dining and casual indoor/outdoor living, while a large kitchen provides a spacious amenity. The main bedroom is a large space, with built in wardrobes, looking out over the terrace, while the second bedroom is a good space with bright outlook.
Highlighted by the terrace, providing a delightful outdoor zone leading to a level lawn and leafy gardens, this apartment is a brilliant opportunity in a handy locale. With scope for a revamp to taste, it offers an excellent chance for both investors and owner-occupiers.
Featuring easy access to parking, storage room, and shared laundry, it is just moments from Double Bay’s cafes and eateries, plus shopping, transport, and the harbour foreshore at Steyne Park
PROPERTY FEATURES
Quiet + private 2-bedroom apartment in good building
Spacious living + dining opening to sun-dappled terrace
Large master bedroom with built in wardrobe, peaceful 2nd bedroom
Generous modern kitchen with dishwasher, bright outlook
Contemporary tiled bathroom, shared common laundry
Terrace great for relaxed dining, casual indoor/outdoor life
In good condition, scope for refurbishment to taste (STCA)
Serene ground level position, quiet, good security building
Close to Double Bay cafes, shops, transport, harbour parks
Superb chance for investors and owner-occupiers alike






















