Property Details
A traditional end-terrace located in one of the Inner East’s most exclusive streets with contemporary designer living. Bathed in natural North Eastern sunlight, this chic urban home has been built to meticulous standards and appointed with the very finest features and finishes.
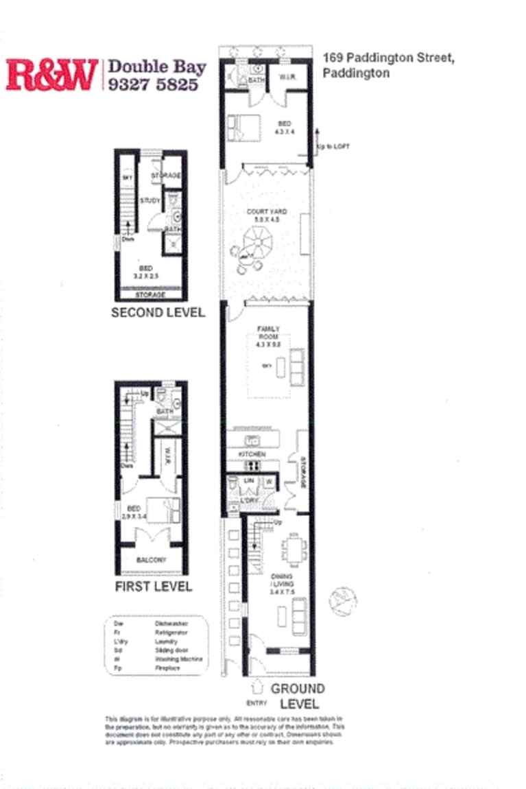
Features an Open plan formal living and dining, State of the Art kitchen with Corian benchtops & breakfast bar, Miele appliances; Family room with floor to ceiling bi-fold doors open to entertaining terrace/courtyard.
Three bedrooms, master with walk in robe and balcony, second loft-style bedroom with ensuite and the third bedroom is pavilion style teenage retreat or home office with ensuite, storage loft and walk in robe. Additional features include internal laundry with ample storage, plantation shutters, Blackbutt floors and ducted reverse-cycle air conditioning.
Stroll to the buzz and lifestyle of Oxford Street boutiques, Queen Street restaurants and Art Galleries and Centennial Parklands.
PROPERTY FEATURES
Beautifully renovated throughout
Bathed in natural light
Perfect teenagers retreat/home office
Sunny courtyard
Beautiful kitchen with Miele appliances
Ducted reverse-cycle air conditioning




























